
Geiger Furniture, part of the MillerKnoll group, designs high-quality contract furniture that expertly achieves both style and function. Geiger’s wood-centric designs can be found in Fortune 500 companies, esteemed law firms, and higher education buildings across the United States.
The furniture company offers casegoods, storage pieces, desks, tables, seating, and accessories — all with custom capabilities. According to their site, Geiger Furniture is rooted in community, finds its foundation in craft, and drives for quality.
Heading up product development for Geiger are Brian Fuller, senior product development manager, and John Leach, program manager of new product development. Between the two of them, Fuller and Leach have roughly 42 years of experience in the furniture industry.
The two hold an uncompromising trust in Vectorworks Fundamentals for their design and coordination needs, knowing that their supercharged workflow yields designs that give customers exactly what they want.
Vectorworks Fundamentals is the tool I need for rapid creation and new designs.John Leach, Geiger Furniture
Before a Geiger Furniture piece ends up in a lobby, office, or conference room, it begins with Vectorworks Fundamentals. “I’m often working on new solutions in Vectorworks to keep our product offering fresh,” said Leach. “Vectorworks Fundamentals is the tool I need for rapid creation and new designs.”
The Geiger team follows two workflows, the first of which is for product design. Geiger works with several world-class designers; and, when one of these designers has an idea for a new product, they present it to Fuller and Leach.
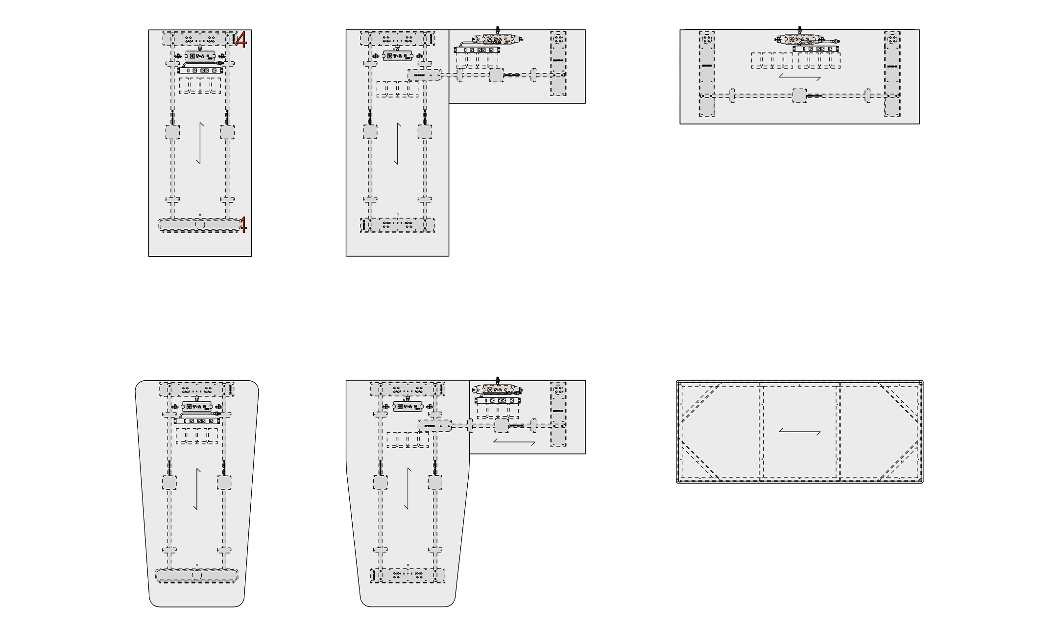
After the presentation, collaboration is the name of the game. Leach uses Vectorworks Fundamentals to draft technical drawings of the designer’s vision. “I find one of Vectorworks' biggest strengths is CAD-accurate technical illustration. It’s beautiful for that.”
These drawings serve as connection between Geiger and the designer. According to Fuller, their goal is one of service: to be an “advocate of the designer.”

The second workflow the Geiger team follows is for an existing product. When a customer interested in a Geiger piece decides on material, color, and other specifications, a Product Application Specialist then translates the design specs using Vectorworks Fundamentals. From here, a back-and-forth dialogue can take place between the specialist and a designer to verify details. After the technical drawing of the design is finished, it’s rendered using our integrated rendering feature set, Renderworks®, or an external partner rendering software for photorealistic representations.
Fundamentals is also used for Geiger’s customer materials. Leach said, “We’re using Vectorworks throughout the entire process. From design inception to order-entry, to install drawings, and further out.”
Start-to-finish use of Vectorworks makes up the Geiger workflow, said Leach. “Our business model is centralized on Vectorworks. Geiger is so custom-centric. We need a program powerful enough to be able to change parameters and change a product, so we can create not only a standard product but a custom product as well.”
In its most boiled-down essence, Fuller and company use Vectorworks Fundamentals as a means of communication. Given the collaborative nature of Geiger’s workflows, they come across designers, engineers, and architects who’re using variety of software. But, thanks to Vectorworks’ file-sharing capabilities, the Geiger team can import and export files without disrupting their work.
Not only is Fundamentals used to communicate with other professionals, but potential customers too. Fuller spoke about the importance of Vectorworks renderings when working with customers and clients: “It’s great for showing materiality and other details. You can say, ‘Hey, this is what we think you want. Does this look like what you want?’”
Leach is largely responsible for Geiger’s extensive customized toolsets, scripts, plug-in managers, and symbols library. According to Fuller, Leach’s role is crucial to the Geiger Furniture process.
We’re using Vectorworks throughout the entire process. From design inception to order-entry, to install drawings, and further out.John Leach, Geiger Furniture

The level of detail Leach provides in creating these intelligent symbols seems to be the true key to Geiger’s ability to make a high-end, customizable product. Leach includes even the smallest details, such as how far a screw is going into a piece of wood or where there’s an opening for access to an electrical outlet.
These details allow for a conversation to take place throughout the furniture’s creation and placement. As Leach said, “It helps to have that level of detail. Otherwise, something’s going to go to engineering and they’re going to say, ‘Well, where does this go? How does this work?’”
Furthermore, Leach uses Vectorworks' powerful database to assign price and part numbers to symbols, specifying a customer’s needs. But Leach refers to the “real power” being Vectorworks’ Vectorscript: “I can program intelligent symbols that allow our designers using Vectorworks to customize our product quickly.”
A supercharged workflow, indeed.
Subscribers receive news, customer stories, success and learning tips, event information, and other important announcements from Vectorworks.
By submitting this form, you agree that Vectorworks, Inc. and its authorized partners may contact you in regards to news, offers, and the use of our software, services, and platforms. Learn more about our privacy practices and your data on our privacy page.*