
Vectorworks Architect 2025 introduces new and enhanced features that streamline interior design workflows and provide superior control over documentation.
The updated Room Finishes feature, for example, helps you create, annotate, present, and report room finishes with superior detail and control.
Meanwhile, the new Countertop tool — paired with the Cabinet tool — help you create beautiful, functional kitchens and other interior spaces.
Let’s explore how these features can benefit your design practice.
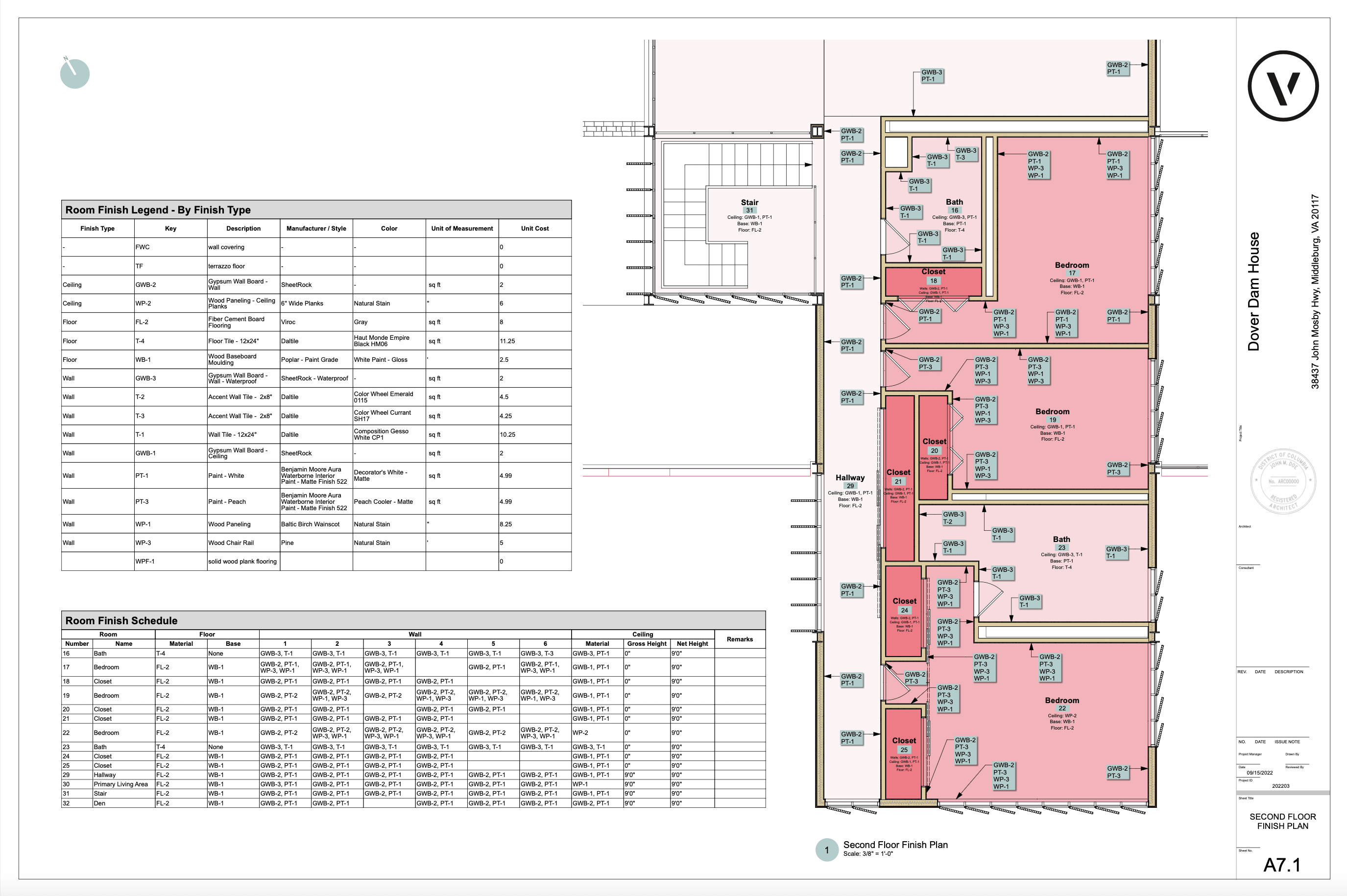
The Room Finishes feature offers a flexible approach to managing wall, floor, ceiling, and baseboard finishes. Whether your project demands a simple specification for wall finishes or a more detailed breakdown by individual wall surfaces, the updated feature provides several methods to assign and manage these elements.

Room finish plan and schedules in Vectorworks Architect 2025.
Documenting room finishes is made seamless with data assignment using the Space Object. This allows you to manage, report, and annotate drawings with customizable and easy-to-understand finish data.
Next, there’s the Countertop tool that’s new to Vectorworks Architect 2025. This tool and the Cabinet tool can prove to be game changers when designing kitchens, bathrooms, and more. With the tool, you can create parametric countertops based on manual drawings or cabinet edges, insert sinks and taps, and much more.
With the Countertop tool, you can create stunning and finely detailed countertops, balancing parametric automation with flexible customization and save time managing countertops across project.
For a streamlined workflow with the Cabinet tool, use the Marquee command or Pick mode to select the underlying cabinets and watch the countertop auto-generate the correct footprint and at the correct elevation for your design.

Countertop details and schedules in Vectorworks Architect 2025.
In the video below, you’ll also see how the Countertop tool allows you to pick cabinets to generate your new countertop forms, with automatic features like backsplashes, waterfall runs, and custom edge finishes. The tool also smartly auto-generates holes for sinks, electrical outlets, and other appliances. Check it out:
Click the button below to start your free trial of Vectorworks 2025.
Subscribers receive news, customer stories, success and learning tips, event information, and other important announcements from Vectorworks.
By submitting this form, you agree that Vectorworks, Inc. and its authorized partners may contact you in regards to news, offers, and the use of our software, services, and platforms. Learn more about our privacy practices and your data on our privacy page.*